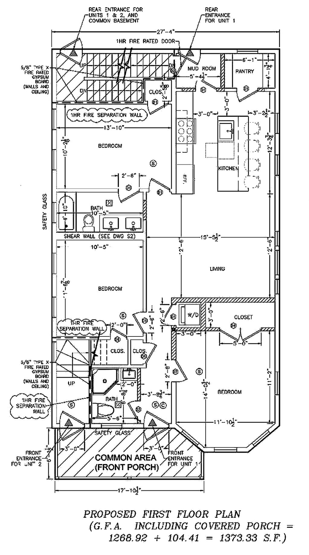
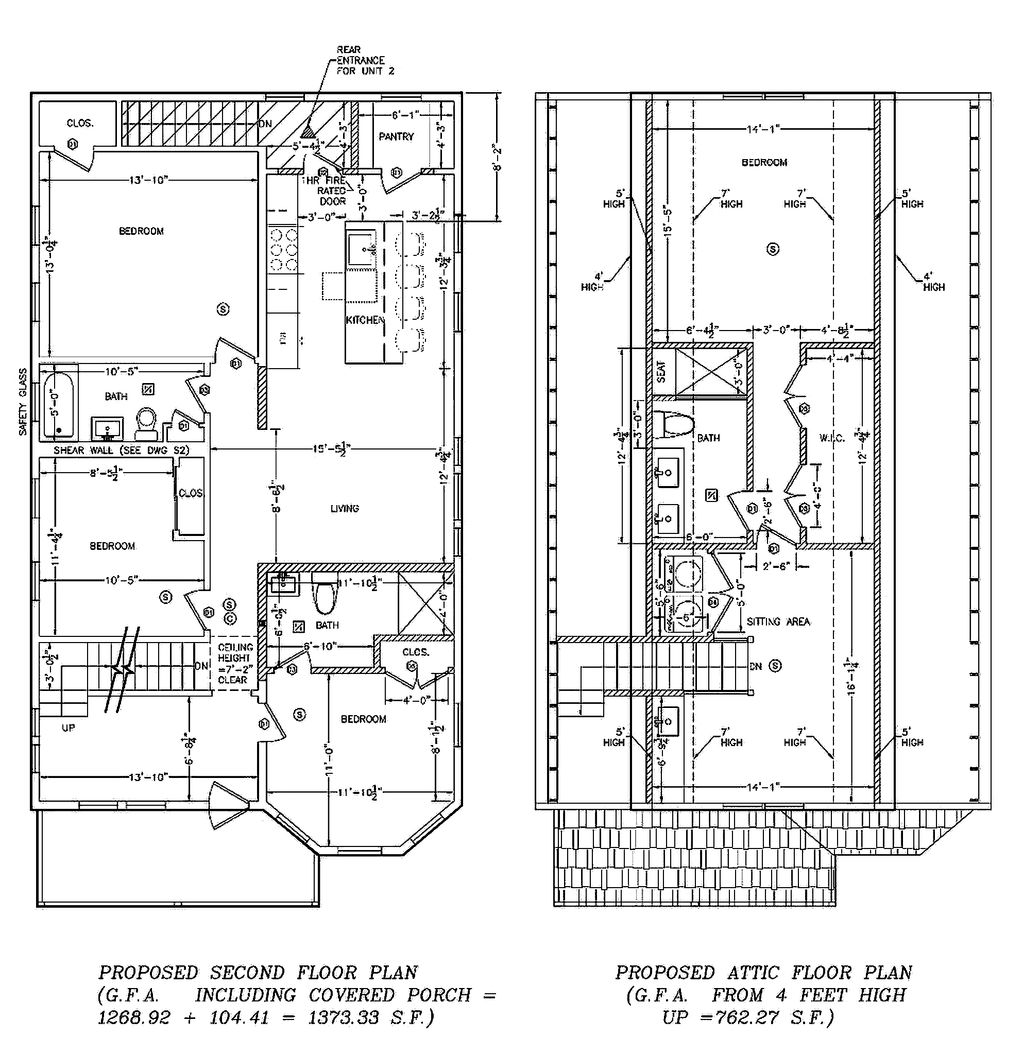
2 BRAND NEW CONDOS COMING TO THE MARKET June 2026!
Cypress Street Condos - 10-12 Cypress St Watertown, MA
Are you interested in purchasing or learning more about the Cypress Street property? The MB Realty Group can provide you with all the details you need, especially if you're considering Watertown condos.

